 
        
        
      
    
    SoPo ROASTING & BREWING COMPANY
Albuquerque, NM
2017 / 2022
SoPo Roasting & Brewing Company is located on the Calvary Albuquerque Church Main Campus in Albuquerque, NM. The Client approached our firm to design a new age coffee shop that explores and highlights the craft of coffee. The design team was inspired by hard working farmers that harvest the beans and the craft of the baristas who’s talents are showcased behind the service counter.
Located in the heart of a very active Church campus, the space needed to expand its ability to serve as a community hub. Being a hub for the community, the space needed to expand its ability to serve as meeting space for small and large groups with retail taking a back seat to congregational area. The vision was to generate an interactive space that enhances customer interaction with one another as well as with the barista’s while placing or awaiting orders. The reduction of ordering and pickup lines was very important to the overall flow and function of the space.
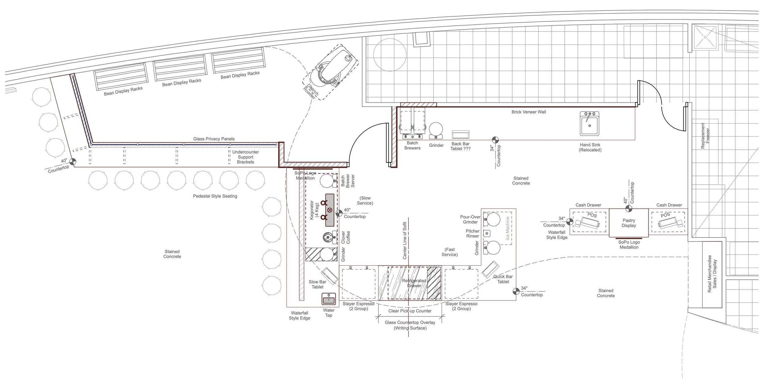
The minimal footprint maximizes efficiency blending the retail bookstore around the perimeter of the various seating opportunities. The production process is put on display via a mural wall which outlines the process of a bean from farming, transport, roasting and brewing.
Interior finishes such as reclaimed barnwood siding, butcher block tables, monolithic stone and concrete floors draw on the forms of materials of the farming and manufacturing industry.
The artful work of the Barista is theatrically displayed as they work. The ordering counter is highly contrasted by means of artificial lighting and light colored materiality highlighting them as they artfully assemble unique espresso blends and specialty drinks.
PROJECT DATA
Client Calvary Albuquerque
Size 8,675 s.f.
Contractor                      SDV Construction             - Phase I
                                         Bennett Enterprises          - Phase II
Project Delivery Design-Build
 
          
        
          
          
        
       
          
        
          
          
        
       
          
        
          
          
        
       
          
        
          
          
        
       
          
        
          
          
        
       
          
        
          
          
        
       
          
        
          
          
        
       
          
        
          
          
        
       
          
        
          
          
        
       
          
        
          
          
        
       
          
        
          
          
        
       
          
        
          
          
        
       
          
        
          
          
        
       
          
        
          
          
        
       
          
        
          
          
        
       
          
        
          
          
        
      Photography by Matt O Photo
 
                  
                    
                 
                  
                    
                